Trilocale in vendita

Affi, Via Dei Ciliegi
€ 338.000
Prezzo aggiornato
3 locali 3 locali
100 Mq 100 Mq
2 bagni 2 bagni

Trilocale in vendita

Affi, Via Dei Ciliegi

Descrizione annuncio

AFFI

Nuovi appartamenti trilocali con giardino

In posizione comoda a tutti i servizi ed al casello di Affi, a soli 5 Km dal Lago di Garda, è di prossima realizzazione una piccola palazzina costituita da sole otto unità.

Ci troviamo nel nuovo quartiere del paese, caratterizzato strade a bassa percorrenza e dalla presenza di ampie aree verdi ed adibite a parcheggi. I centri commerciali e tutti i servizi si possono raggiungere anche a piedi grazie al comodo sottopasso, il quartiere è collegato alla pista ciclabile che collega Affi a Cavaion, al lago di Garda ed al monte Baldo. Da qui partono anche vari sentieri che portano in cima al monte Moscal, in Valsorda o sul lago.

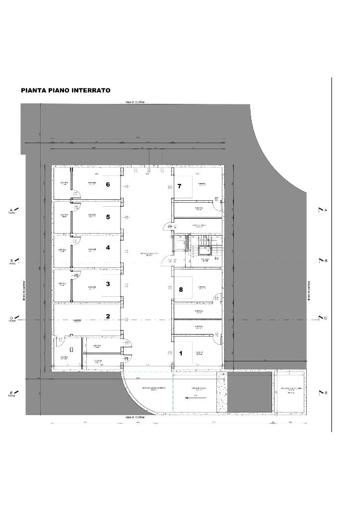
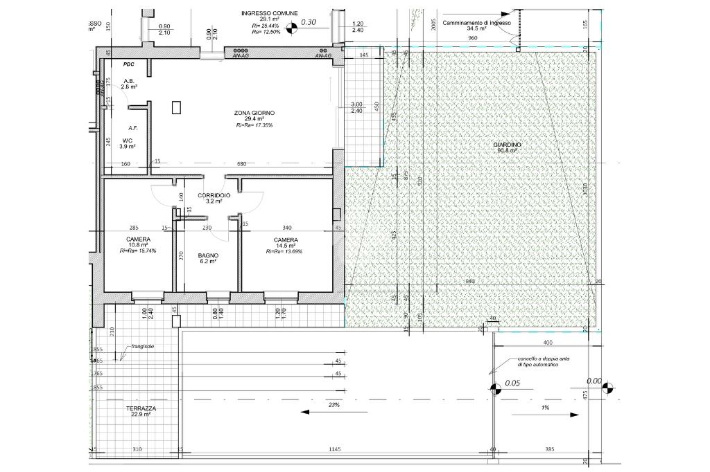
La palazzina di nuova costruzione è realizzata in classe A4, con particolare attenzione al risparmio energetico e all’isolamento termo acustico delle varie piano interrato, ogni appartamento dispone di un garage con basculante sezionale motorizzata, direttamente collegato a una spaziosa cantina. Questa unità include inoltre due posti auto scoperti privati al piano terra.

Gli appartamenti sono composti da un’ampia zona giorno open-space, due camere da letto, due bagni, disimpegno e ripostiglio.

CARATTERISTICHE COSTRUTTIVE:

Ottime sono le finiture generali che garantiscono un perfetto isolamento termo-acustico oltre che un notevole risparmio dei costi di gestione: un impianto fotovoltaico privato da 4,1 Kw, il riscaldamento a pavimento con pompa di calore, i serramenti in PVC a triplo vetro e la predisposizione per l’impianto di climatizzazione.

Una chicca è la predisposizione per le batterie di accumulo e per la wallbox in garage.

E’ possibile scegliere tra vari colori di gres porcellanato per i pavimenti ed i rivestimenti oltre che eventualmente valutare una disposizione diversa per gli interni.

Queste abitazioni sono pensate per chi cerca una prima casa dotate di ogni confort e situate in una zona verde e tranquilla ma ben servita. Possono anche essere un’ottima soluzione come casa per le vacanze in zona Lago di Garda oppure come investimento.

Mostra tutto

Nelle vicinanze

Trasporto pubblico Trasporto pubblico
Affi
Affi
790 m
Trasporto pubblico
2,7 Km
Ricariche auto elettriche Ricariche auto elettriche
Grand'Affi Shopping Center | Driwe
550 m
Tesla Supercharger Affi
890 m
Autobrennero Affi
920 m
Scuole Scuole
Scuole
2,8 Km
Farmacia Farmacia
Farmacia Farinola
770 m
Supermercati Supermercati
La buona terra
350 m
IperOrvea
680 m
Orvea Supermercato
810 m
Supermercati
1,0 Km
EuroSpin
1,5 Km
Negozi Negozi
Tally Weijl
480 m
Rinascimento
500 m
Esprit
500 m
Tezenis
510 m
Nico
960 m
Bar Bar
Bar
390 m
Bici Grill Bar
510 m
Pedrera 7.2
590 m
OperaPrima Cafe
840 m
African Suite Lounge Bar
980 m
Ristoranti Ristoranti
Trattoria Moscal
390 m
La Piadineria
490 m
Ristorante Pizzeria Metti
960 m
Pizzeria Ristorante MaryGiò
1,1 Km
Agriturismo Incaffi
1,2 Km
Mostra tutto

Caratteristiche

Rif.:
61164907
Piano:
Terra con giardino di 3 con ascensore
Totale piani:
3
Box:
1
Posti auto:
2
Terrazzi:
2
Mostra tutto
Prezzo Prezzo
€ 338.000
Rata mutuo Rata mutuo
€ 1.602 / mese
Proponi il tuo prezzoProponi il tuo prezzo

Classe Energetica

A4
A4
A4
A4
A4
A4
A4
A4
A4
EP globale non rinnovabile:
37.25 kW h/m² anno
EP globale rinnovabile:
37.25 kW h/m² anno
EP invernale del fabbricato:
EP estiva del fabbricato:
Anno di costruzione:
2027
Riscaldamento:
Autonomo
Tipo impianto:
A pavimento
Tipo alimentazione:
Pannelli

Prezzo ridotto di €1 (3%%)

Ti interessa visionare l'immobile?

Fissa un appuntamento  Fissa un appuntamento

Richiedi informazioni

Clicca su Leggi per aprire l'informativa
* Questi campi sono obbligatori

Calcola il tuo mutuo

Semplice e senza impegno
Anticipo

( % )
Mutuo

( % )

pochi semplici passi

inserisci i tuoi dati
Questionario completato
Grazie per aver richiesto un appuntamento senza impegno con un nostro Consulente del Credito e Assicurativo.

Hai inserito correttamente tutti i dati necessari e a breve riceverai una e-mail con un link da convalidare per inviare i tuoi dati.
Affiliato
Napoleone Srl
Via Don Mazza, 1 37010 Affi (VR)

Il nostro staff


  • Andrea Vicentini
    Affiliato

  • Rosario Chiarenza
    Affiliato

  • Eduard Delli Noci
    Collaboratore

  • Francesca Danieli
    Collaboratrice

  • Sofia Menegazzi
    Collaboratrice

  • Giulia Sandri
    Collaboratrice

  • Sara Tomasone
    Coordinatrice
Via Don Mazza, 1 37010 Affi (VR)
Zona: Lago di Garda - Entroterra - Affi - Cavaion - Costermano - Albarè - Castion - Marciaga
Mostra su mappa
Orari: dal lunedì al venerdì 09.00-13.00/15.00-19.30; sabato 09.00-13.00/15.00-18.00
Affiliato
Napoleone Srl
Via Don Mazza, 1 37010 Affi (VR)

2026 Tecnocasa Franchising S.p.A. - P. IVA 08365160152 - Via Monte Bianco 60/A 20089 Rozzano (MI). Ogni agenzia ha un proprio titolare ed è autonoma. Privacy policy | Policy utilizzo | Cookie policy