Villa singola in vendita

Affi, Via danzia
€ 1.190.000
Prezzo aggiornato
5 locali 5 locali
320 Mq 320 Mq
4 bagni 4 bagni

Villa singola in vendita

Affi, Via danzia

Descrizione annuncio

AFFI – Prestigiosa villa singola con piscina in posizione fantastica

Il paese di Affi è conosciuto per i suoi centri commerciali, per la comodità alle grandi vie di comunicazione (casello A22 e tangenziali), per i servizi e gli innumerevoli ristoranti e per la vicinanza al lago di Garda (4 km).

A due passi dalla zona commerciale è stata realizzata una nuova lottizzazione con strade a bassa percorrenza e parchi giochi, direttamente collegata con la famosa pista ciclo-pedonale dei quattro comuni.

In questa location servita al meglio e molto tranquilla è stata costruita, nel 2023, questa prestigiosa villa singola con piscina.

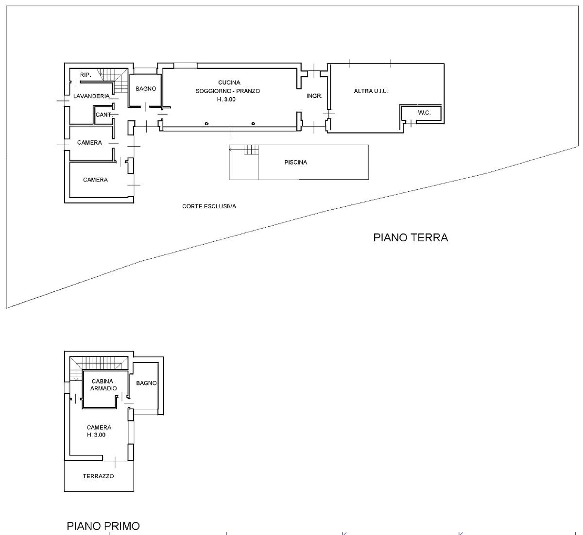
La villa è caratterizzata in primo luogo dalla grande zona giorno che si affaccia sul giardino privato, sulla terrazza e sulla piscina riscaldata con nuoto controcorrente ad acqua salata. Facendo scorrere i grandi serramenti a vetro l’interno dell’abitazione si unisce alla zona esterna e diventa un unico ambiente da sfruttare in ogni occasione. Al piano terra si trovano anche due camere da letto (matrimoniale e doppia), una grande lavanderia, una cantina refrigerata per avere sempre il vino alla giusta temperatura, un ripostiglio e la grande zona ingresso che separa la parte abitativa dalla grande autorimessa per tre auto con basculanti sezionali motorizzate, wallbox e batterie per la ricarica dei mezzi elettrici. Un pratico bagno indipendente serve la zona esterna: gli ospiti non sono obbligati ad entrare in casa durante i party in piscina.

Al piano superiore è stata realizzata la zona notte padronale: una grande e panoramica camera da letto con bagno, cabina armadi e terrazza privati garantiscono privacy e indipendenza dal piano terra.

La villa è stata progettata e studiata in ogni minimo particolare, è in classe energetica A4 ed è dotata di ogni confort che un’abitazione moderna può offrire: riscaldamento a pavimento con pompa di calore, impianto di condizionamento caldo/freddo, impianto fotovoltaico con batterie di accumulo, allarme perimetrale e volumetrico, impianto elettrico domotico, irrigazione automatica per il giardino, autorimesse al piano terra direttamente collegate con l’abitazione, serramenti ad alto livello di sicurezza e isolamento termo-acustico.

Questa dimora è la soluzione ideale per chi cerca un’abitazione moderna, servita e pronta da vivere sia come prima casa che come casa da vacanza in zona lago di Garda.

Mostra tutto

Nelle vicinanze

Trasporto pubblico Trasporto pubblico
Affi
Affi
320 m
Trasporto pubblico
1,8 Km
Ricariche auto elettriche Ricariche auto elettriche
Autobrennero Affi
380 m
Tesla Supercharger Affi
410 m
Grand'Affi Shopping Center | Driwe
560 m
Farmacia Farmacia
Farmacia Farinola
330 m
Farmacia Rizzotti
2,5 Km
Supermercati Supermercati
Supermercati
210 m
Orvea Supermercato
290 m
IperOrvea
440 m
La buona terra
1,3 Km
EuroSpin
2,2 Km
Negozi Negozi
Nico
130 m
Tezenis
580 m
Rinascimento
590 m
Esprit
600 m
Tally Weijl
610 m
Bar Bar
OperaPrima Cafe
280 m
African Suite Lounge Bar
380 m
Pedrera 7.2
520 m
Bar
700 m
Bici Grill Bar
960 m
Ristoranti Ristoranti
Pizzeria Ristorante MaryGiò
290 m
Brückenwirt
470 m
La Piadineria
600 m
Trattoria Moscal
1,3 Km
Coffee Break Trattoria Bar
1,8 Km
Mostra tutto

Caratteristiche

Rif.:
61049553
Piano:
Terra di 2
Totale piani:
2
Box:
2
Posti auto:
3
Balconi:
1
Mostra tutto
Prezzo Prezzo
€ 1.190.000
Rata mutuo Rata mutuo
€ 5.609 / mese
Proponi il tuo prezzoProponi il tuo prezzo

Classe Energetica

A4
A4
A4
A4
A4
A4
A4
A4
A4
EP globale non rinnovabile:
67.50 kW h/m² anno
EP globale rinnovabile:
67.50 kW h/m² anno
EP invernale del fabbricato:
EP estiva del fabbricato:
Anno di costruzione:
2022
Riscaldamento:
Autonomo
Tipo impianto:
A pavimento
Tipo alimentazione:
Pannelli

Prezzo ridotto di €1 (8%%)

Ti interessa visionare l'immobile?

Fissa un appuntamento  Fissa un appuntamento

Richiedi informazioni

Clicca su Leggi per aprire l'informativa
* Questi campi sono obbligatori

Calcola il tuo mutuo

Semplice e senza impegno
Anticipo

( % )
Mutuo

( % )

pochi semplici passi

inserisci i tuoi dati
Questionario completato
Grazie per aver richiesto un appuntamento senza impegno con un nostro Consulente del Credito e Assicurativo.

Hai inserito correttamente tutti i dati necessari e a breve riceverai una e-mail con un link da convalidare per inviare i tuoi dati.
Affiliato
Napoleone Srl
Via Don Mazza, 1 37010 Affi (VR)

Il nostro staff


  • Andrea Vicentini
    Affiliato

  • Rosario Chiarenza
    Affiliato

  • Eduard Delli Noci
    Collaboratore

  • Francesca Danieli
    Coordinatrice

  • Sofia Menegazzi
    Collaboratrice

  • Giulia Sandri
    Coordinatrice

  • Sara Tomasone
    Coordinatrice
Via Don Mazza, 1 37010 Affi (VR)
Zona: Lago di Garda - Entroterra - Affi - Cavaion - Costermano - Albarè - Castion - Marciaga
Mostra su mappa
Orari: dal lunedì al venerdì 09.00-13.00/15.00-19.30; sabato 09.00-13.00/15.00-18.00
Affiliato
Napoleone Srl
Via Don Mazza, 1 37010 Affi (VR)

2026 Tecnocasa Franchising S.p.A. - P. IVA 08365160152 - Via Monte Bianco 60/A 20089 Rozzano (MI). Ogni agenzia ha un proprio titolare ed è autonoma. Privacy policy | Policy utilizzo | Cookie policy