Porzione di bifamiliare in vendita

Affi, Via del Canaletto
€ 480.000
4 locali 4 locali
170 Mq 170 Mq
2 bagni 2 bagni

Porzione di bifamiliare in vendita

Affi, Via del Canaletto

Descrizione annuncio

AFFI – villa bifamiliare con giardino e ampia terrazza

In posizione dominante, a soli 6 Km dal Lago di Garda, proponiamo in vendita porzione di bifamiliare su due livelli: piano terra con grande giardino privato e primo piano con terrazza di oltre 27 mq.

La nuova costruzione si trova nel nuovo, signorile quartiere del paese, caratterizzato dalla presenza di case singole e bifamiliari e strade a senso unico a bassa percorrenza. I centri commerciali e tutti i servizi si possono raggiungere anche a piedi, il quartiere è collegato alla pista ciclabile dei quattro comuni ed immerso nei vigneti ed uliveti dell’entroterra gardesano.

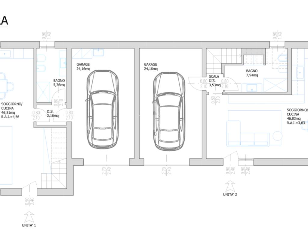
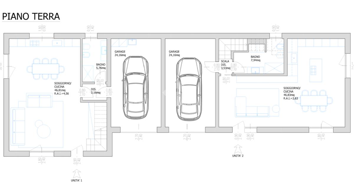
Le due porzioni hanno ingressi pedonali e carraio con grande garage e posti auto esterni di proprietà.

Le unità godono ciascuna di un giardino privato e sono composte da una ampia zona giorno open-space con zona cottura caratterizzata da grandi finestre dalla doppia esposizione che donano luminosità agli ambienti. E’ presente al piano un bagno finestrato.

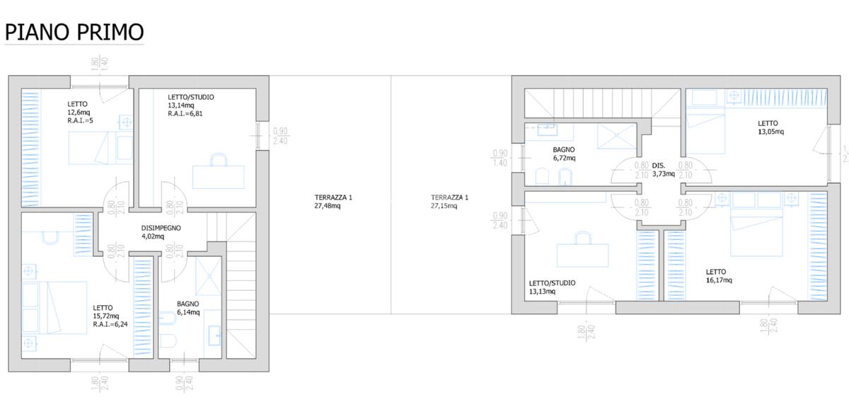
Al primo piano troviamo tre ampie camere da letto (una matrimoniale e due doppie) e un bagno finestrato. Questo piano è inoltre caratterizzato dallo spazioso terrazzo.

Ottime finiture garantiranno la classe energetica A4 per un perfetto isolamento termo-acustico oltre che un notevole risparmio dei costi di gestione: impianto fotovoltaico, riscaldamento a pavimento con pompa di calore.

Queste soluzioni sono ideali per una famiglia alla ricerca di una prima casa comoda, moderna ed indipendente che vuole vivere nella tranquillità della natura senza rinunciare alla vicinanza delle vie di grande comunicazione ed ai servizi che offrono i moderni centri commerciali.

Mostra tutto

Nelle vicinanze

Trasporto pubblico Trasporto pubblico
Affi
Affi
530 m
Trasporto pubblico
1,7 Km
Ricariche auto elettriche Ricariche auto elettriche
Autobrennero Affi
470 m
Tesla Supercharger Affi
510 m
Grand'Affi Shopping Center | Driwe
770 m
Farmacia Farmacia
Farmacia Farinola
580 m
Farmacia Rizzotti
2,3 Km
Supermercati Supermercati
Supermercati
320 m
Orvea Supermercato
510 m
IperOrvea
640 m
La buona terra
1,6 Km
EuroSpin
2,3 Km
Negozi Negozi
Nico
370 m
Tezenis
800 m
Esprit
810 m
Rinascimento
820 m
Tally Weijl
840 m
Bar Bar
African Suite Lounge Bar
430 m
OperaPrima Cafe
480 m
Pedrera 7.2
780 m
Bar
940 m
Bici Grill Bar
1,2 Km
Ristoranti Ristoranti
Pizzeria Ristorante MaryGiò
330 m
Brückenwirt
340 m
La Piadineria
830 m
Trattoria Moscal
1,6 Km
Coffee Break Trattoria Bar
1,6 Km
Mostra tutto

Caratteristiche

Rif.:
61187351
Piano:
2 di 2 (Piano terra con giardino)
Box:
1
Posti auto:
3
Terrazzi:
2
Camere da letto:
3
Mostra tutto
Prezzo Prezzo
€ 480.000
Rata mutuo Rata mutuo
€ 2.280 / mese
Proponi il tuo prezzoProponi il tuo prezzo

Classe Energetica

A4
A4
A4
A4
A4
A4
A4
A4
A4
EP globale non rinnovabile:
77.45 kW h/m² anno
EP globale rinnovabile:
77.45 kW h/m² anno
EP invernale del fabbricato:
EP estiva del fabbricato:
Anno di costruzione:
2026
Riscaldamento:
Autonomo
Tipo impianto:
A pavimento
Tipo alimentazione:
Pannelli

Ti interessa visionare l'immobile?

Fissa un appuntamento  Fissa un appuntamento

Richiedi informazioni

Clicca su Leggi per aprire l'informativa
* Questi campi sono obbligatori

Calcola il tuo mutuo

Semplice e senza impegno
Anticipo

( % )
Mutuo

( % )

pochi semplici passi

inserisci i tuoi dati
Questionario completato
Grazie per aver richiesto un appuntamento senza impegno con un nostro Consulente del Credito e Assicurativo.

Hai inserito correttamente tutti i dati necessari e a breve riceverai una e-mail con un link da convalidare per inviare i tuoi dati.
Affiliato
Napoleone Srl
Via Don Mazza, 1 37010 Affi (VR)

Il nostro staff


  • Andrea Vicentini
    Affiliato

  • Rosario Chiarenza
    Affiliato

  • Eduard Delli Noci
    Collaboratore

  • Francesca Danieli
    Collaboratrice

  • Sofia Menegazzi
    Collaboratrice

  • Giulia Sandri
    Collaboratrice

  • Sara Tomasone
    Coordinatrice
Via Don Mazza, 1 37010 Affi (VR)
Zona: Lago di Garda - Entroterra - Affi - Cavaion - Costermano - Albarè - Castion - Marciaga
Mostra su mappa
Orari: dal lunedì al venerdì 09.00-13.00/15.00-19.30; sabato 09.00-13.00/15.00-18.00
Affiliato
Napoleone Srl
Via Don Mazza, 1 37010 Affi (VR)

2026 Tecnocasa Franchising S.p.A. - P. IVA 08365160152 - Via Monte Bianco 60/A 20089 Rozzano (MI). Ogni agenzia ha un proprio titolare ed è autonoma. Privacy policy | Policy utilizzo | Cookie policy