Bilocale in vendita

Cavaion Veronese, Via mameli - Sega
€ 165.000
Prezzo aggiornato
2 locali 2 locali
60 Mq 60 Mq
1 bagno 1 bagno

Bilocale in vendita

Cavaion Veronese, Via mameli - Sega

Descrizione annuncio

CAVAION Sega di Cavaion - Bilocale con doppio giardino privato in zona verde e riservata

In una splendida zona residenziale circondata dal verde e dalla tranquillità, a pochi minuti da tutti i principali servizi del paese, proponiamo in vendita un grazioso bilocale con doppio giardino, situato all’interno di un perfettamente tenuto complesso condominiale.

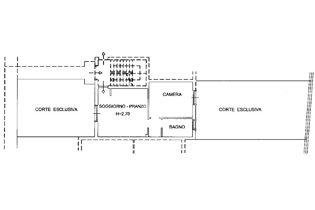
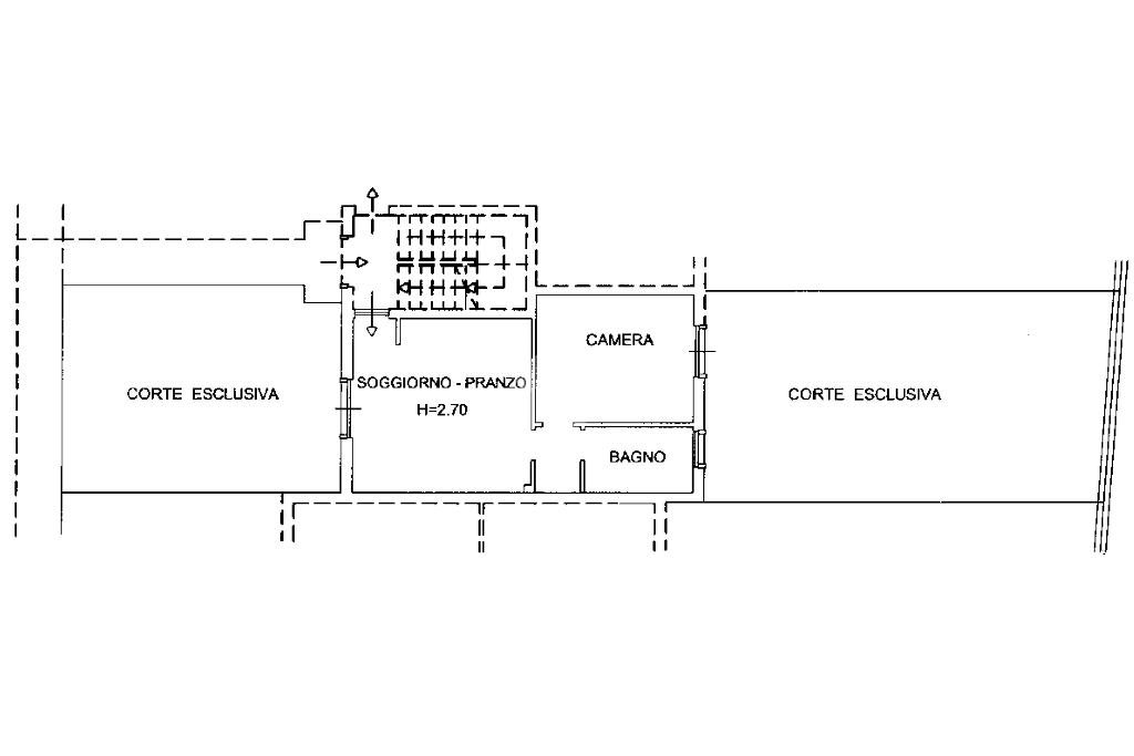
L’appartamento si apre su un luminoso soggiorno con angolo cottura esposto a sud, che regala luce naturale durante tutto l’arco della giornata e consente l’accesso diretto al primo giardino privato, ideale per pranzi all’aperto, relax o momenti di convivialità. La zona notte ospita una spaziosa camera matrimoniale con affaccio sul secondo giardino, perfetto come angolo riservato o zona verde personale. Il bagno, dotato di finestra, completa la zona abitativa con funzionalità e comfort.

Completano la proposta troviamo una grande cantina e un garage di proprietà. Inoltre, all’interno del cortile condominiale sono presenti numerosi spazi di parcheggio, comodi per ospiti o seconda auto.

Attualmente l’immobile è affittato con regolare contratto in essere fino al 2028, rappresentando un’occasione perfetta per chi desidera un investimento sicuro con rendita immediata. La proprietà viene venduta parzialmente arredata.

Questa soluzione è l’ideale per chi cerca la tranquillità senza rinunciare alla comodità dei servizi, oppure per chi desidera mettere a reddito un immobile pronto all’uso, in una zona residenziale e ben collegata e a pochi minuti dal Lago di Garda.

Mostra tutto

Nelle vicinanze

Trasporto pubblico Trasporto pubblico
Domegliara - Sant'Ambrogio
Domegliara - Sant'Ambrogio
1,6 Km
Trasporto pubblico
350 m
Farmacia Farmacia
Farmacia Venturini
1,5 Km
Supermercati Supermercati
Martinelli
1,2 Km
Hard Discount LIDL
1,4 Km
EuroSpin
2,5 Km
Bar Bar
Bar
260 m
Osteria Il Ghiottone
2,2 Km
Snack bar
2,9 Km
Ristoranti Ristoranti
Ristoranti
180 m
Bar Ristorante DA RIGO
220 m
Ristorante Oseleta
770 m
Agriturismo Val del Tasso
800 m
Restaurant Cà Persiane
1,9 Km
Mostra tutto

Caratteristiche

Rif.:
61123089
Piano:
Terra con giardino di 2
Totale piani:
2
Box:
1
Posti auto:
1
Terrazzi:
2
Mostra tutto
Prezzo Prezzo
€ 165.000
Rata mutuo Rata mutuo
€ 778 / mese
Proponi il tuo prezzoProponi il tuo prezzo

Classe Energetica

Questo immobile è esente da classe energetica
Anno di costruzione:
2007
Riscaldamento:
Autonomo
Tipo impianto:
A radiatori
Tipo alimentazione:
Metano

Prezzo ridotto di €1 (2%%)

Ti interessa visionare l'immobile?

Fissa un appuntamento  Fissa un appuntamento

Richiedi informazioni

Clicca su Leggi per aprire l'informativa
* Questi campi sono obbligatori

Calcola il tuo mutuo

Semplice e senza impegno
Anticipo

( % )
Mutuo

( % )

pochi semplici passi

inserisci i tuoi dati
Questionario completato
Grazie per aver richiesto un appuntamento senza impegno con un nostro Consulente del Credito e Assicurativo.

Hai inserito correttamente tutti i dati necessari e a breve riceverai una e-mail con un link da convalidare per inviare i tuoi dati.
Affiliato
Napoleone Srl
Via Don Mazza, 1 37010 Affi (VR)

Il nostro staff


  • Andrea Vicentini
    Affiliato

  • Rosario Chiarenza
    Affiliato

  • Eduard Delli Noci
    Collaboratore

  • Francesca Danieli
    Coordinatrice

  • Sofia Menegazzi
    Collaboratrice

  • Giulia Sandri
    Coordinatrice

  • Sara Tomasone
    Coordinatrice
Via Don Mazza, 1 37010 Affi (VR)
Zona: Lago di Garda - Entroterra - Affi - Cavaion - Costermano - Albarè - Castion - Marciaga
Mostra su mappa
Orari: dal lunedì al venerdì 09.00-13.00/15.00-19.30; sabato 09.00-13.00/15.00-18.00
Affiliato
Napoleone Srl
Via Don Mazza, 1 37010 Affi (VR)

2026 Tecnocasa Franchising S.p.A. - P. IVA 08365160152 - Via Monte Bianco 60/A 20089 Rozzano (MI). Ogni agenzia ha un proprio titolare ed è autonoma. Privacy policy | Policy utilizzo | Cookie policy