Trilocale in vendita

Costermano, Via consolini - Albarè Stazione
€ 395.000
3 locali 3 locali
150 Mq 150 Mq
2 bagni 2 bagni

Trilocale in vendita

Costermano, Via consolini - Albarè Stazione

Descrizione annuncio

COSTERMANO SUL GARDA - Loc. Albarè

ULTIMO APPARTAMENTO TRILOCALE con giardino angolare, taverna , grande porticato e garage doppio.


Situato nel suggestivo comune di Costermano sul Garda, precisamente nella caratteristica frazione di Albarè, sorge un nuovo e affascinante cantiere residenziale destinato a rivoluzionare il concetto di comfort e modernità nell'ambito dell'edilizia abitativa.

Albarè si trova a soli 2 km dal casello e dai centri commerciali di Affi, a 4 km da Bardolino e dal Lago di Garda, a 2 km dal centro di Costermano ed è posto sulla conosciuta pista ciclabile che collega i 4 comuni con la Valdadige e la Valpolicella.

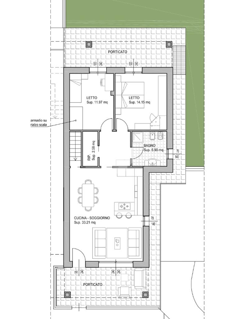
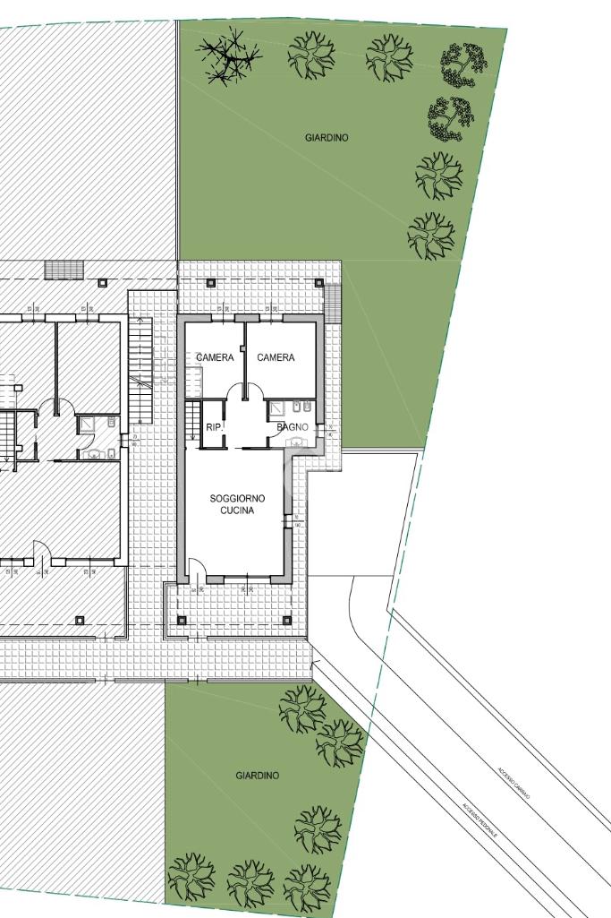
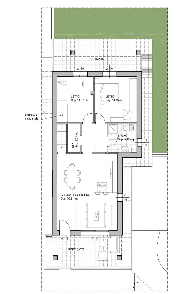
L'ultimo appartamento disponibile in questo piccolo contesto di sole 4 unità, si trova al piano terra e gode di un grande giardino privato (270 mq) ed affaccia su un porticato di oltre 20 mq, ideale per le serate conviviali e le cene con gli amici; un grande soggiorno con zona cottura gode di grandi finestre che, grazie anche all’ottima esposizione, donano molta luminosità all’ambiente. Un disimpegno conduce alle due camere da letto matrimoniali al grande bagno con finestra ed al pratico ripostiglio.

Una scala interna conduce al piano interrato dove si trovano una grande taverna e un garage doppio con zona cantina di 50 mq oltre che i locali tecnici.

Con uno sguardo rivolto al futuro e all'ecosostenibilità, le abitazioni sono dotate di moderni impianti, tra cui il riscaldamento a pavimento e una pompa di calore ibrida, un cappotto esterno ISOTEX ed isolamenti per garantire un comfort termico ottimale e un notevole risparmio energetico.

Le finiture sono curate nei minimi dettagli, con materiali di alta qualità e la possibilità di personalizzare sia il taglio dei locali che i pavimenti e rivestimenti. Le soluzioni architettoniche all'avanguardia, conferiscono ad ogni ambiente un'eleganza senza tempo.

Con un'attenzione particolare alla praticità e alla flessibilità d'uso, queste residenze si presentano come la scelta perfetta sia per chi cerca la propria prima casa, garantendo comfort e funzionalità quotidiana, sia per coloro che desiderano un rifugio esclusivo per le vacanze, dove immergersi nel relax e nella bellezza del paesaggio gardesano.


Cogliete al più presto la prospettiva di realizzare il sogno di una vita in un ambiente unico e incantevole!

Mostra tutto

Nelle vicinanze

Trasporto pubblico Trasporto pubblico
Trasporto pubblico
310 m
Ricariche auto elettriche Ricariche auto elettriche
Costermano Repubblica | EnelX
1,9 Km
Scuole Scuole
Scuole
170 m
Farmacia Farmacia
Farmacia Costermano
2,0 Km
Farmacia Farinola
3,0 Km
Supermercati Supermercati
DeBeni
1,8 Km
La buona terra
2,5 Km
Negozi Negozi
Minimarket
320 m
Maglifico Coster
1,7 Km
Tally Weijl
3,0 Km
Rinascimento
3,0 Km
Tezenis
3,0 Km
Bar Bar
Millenium
2,0 Km
Bar Orchidea
2,0 Km
Bar
2,1 Km
Bici Grill Bar
2,4 Km
Hollywood
2,5 Km
Ristoranti Ristoranti
Osteria dai Coghi
220 m
Fortuna
340 m
Antica Osteria
680 m
Tre Camini
860 m
Ristorante tipico La Dacia
1,3 Km
Mostra tutto

Caratteristiche

Rif.:
60904282
Piano:
Terra con giardino di 2
Totale piani:
2
Box:
1
Terrazzi:
2
Camere da letto:
2
Mostra tutto
Prezzo Prezzo
€ 395.000
Rata mutuo Rata mutuo
€ 1.864 / mese
Proponi il tuo prezzoProponi il tuo prezzo

Classe Energetica

Questo immobile è esente da classe energetica
Anno di costruzione:
2024
Riscaldamento:
Autonomo
Tipo impianto:
A pavimento
Tipo alimentazione:
Altro

Ti interessa visionare l'immobile?

Fissa un appuntamento  Fissa un appuntamento

Richiedi informazioni

Clicca su Leggi per aprire l'informativa
* Questi campi sono obbligatori

Calcola il tuo mutuo

Semplice e senza impegno
Anticipo

( % )
Mutuo

( % )

pochi semplici passi

inserisci i tuoi dati
Questionario completato
Grazie per aver richiesto un appuntamento senza impegno con un nostro Consulente del Credito e Assicurativo.

Hai inserito correttamente tutti i dati necessari e a breve riceverai una e-mail con un link da convalidare per inviare i tuoi dati.
Affiliato
Napoleone Srl
Via Don Mazza, 1 37010 Affi (VR)

Il nostro staff


  • Andrea Vicentini
    Affiliato

  • Rosario Chiarenza
    Affiliato

  • Daniel Castelluccio
    Collaboratore

  • Eduard Delli Noci
    Collaboratore

  • Francesca Danieli
    Coordinatrice

  • Sofia Menegazzi
    Collaboratrice

  • Giulia Sandri
    Coordinatrice

  • Sara Tomasone
    Coordinatrice
Via Don Mazza, 1 37010 Affi (VR)
Zona: Lago di Garda - Entroterra - Affi - Cavaion - Costermano - Albarè - Castion - Marciaga
Mostra su mappa
Orari: dal lunedì al venerdì 09.00-13.00/15.00-19.30; sabato 09.00-13.00/15.00-18.00
Affiliato
Napoleone Srl
Via Don Mazza, 1 37010 Affi (VR)

2025 Tecnocasa Franchising S.p.A. - P. IVA 08365160152 - Via Monte Bianco 60/A 20089 Rozzano (MI). Ogni agenzia ha un proprio titolare ed è autonoma. Privacy policy | Policy utilizzo | Cookie policy